
家永远是我们最牵挂的一个地方,一个温馨的家,一个有爱的家,是可以用空间的分割及软装搭配来打造的,我们需要回归最初的爱。本案以简欧风格为主!
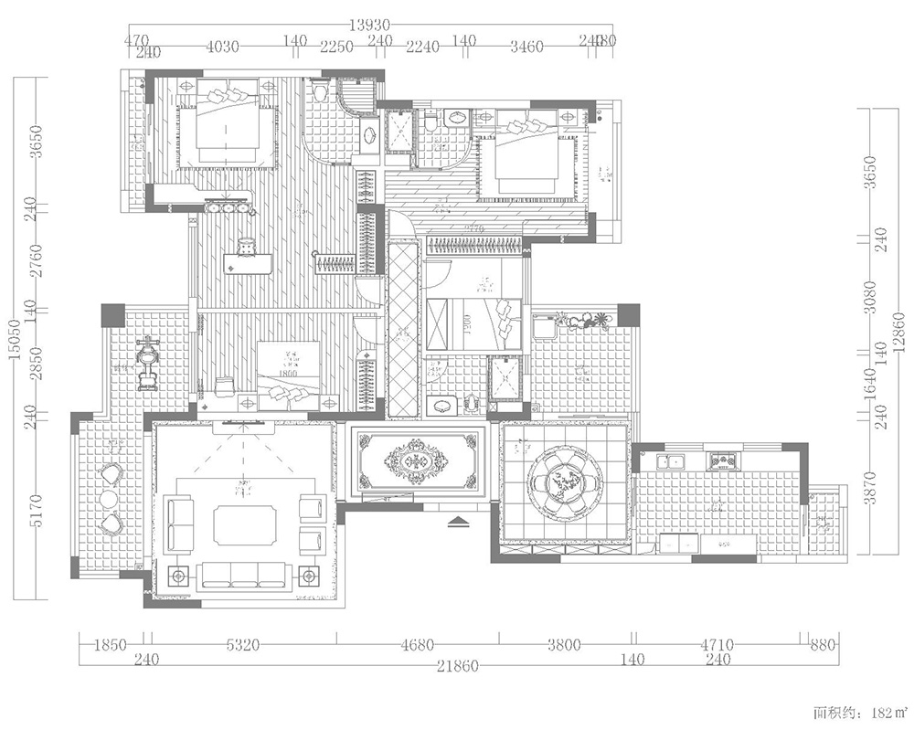
设计说明:此户型采用简洁浪漫的简欧设计风格,本户型方正规矩,布局基本合理,原户型结构上进行局部的改动,在装饰上做了精心的布置。客厅天花引用八角异形天花处理,稳重而不失灵动,墙面爵士白的大理石使空间更加的奢华而不失清晰浪漫,黑白色系的搭配跟现在的元素融余一体,抛弃传统欧式的豪华稳重,结合现在元素的色彩配色,欧式又不失现代,整体风格温馨而不失个性。

佛山201-300平米五居欧式风格装修效果图
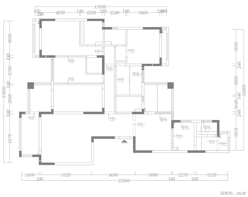
室内装修效果图-平面图

佛山201-300平米五居欧式风格装修效果图
室内装修效果图-户型图

佛山201-300平米五居欧式风格装修效果图
室内装修效果图-客厅

佛山201-300平米五居欧式风格装修效果图
室内装修效果图-主卧

佛山201-300平米五居欧式风格装修效果图
室内装修效果图-次卧

佛山201-300平米五居欧式风格装修效果图
东方名都简欧风格
欧式风格101-200平米五居室
利和豪庭简欧风格
欧式风格101-200平米四居室
世纪豪园欧式风格案例
欧式风格301平米以上别墅
宝峰春天欧式风格案例
欧式风格101-200平米四居室
景德镇嘉禾欧式风格案例
欧式风格101-200平米三居室
盛世香堡欧式风格
欧式风格201-300平米别墅
保山101-200平米欧式风格案例
欧式风格101-200平米四居室
欧式风格室内装修效果图-龙光玖珑湖三居136平米
欧式风格101-200平米三居室